Divistabu dzīvoklis Torņkalnā

80000 eur

Piedāvājums tiem, kas meklē mājokli perspektīvā un strauji attīstošā Torņakalnā.

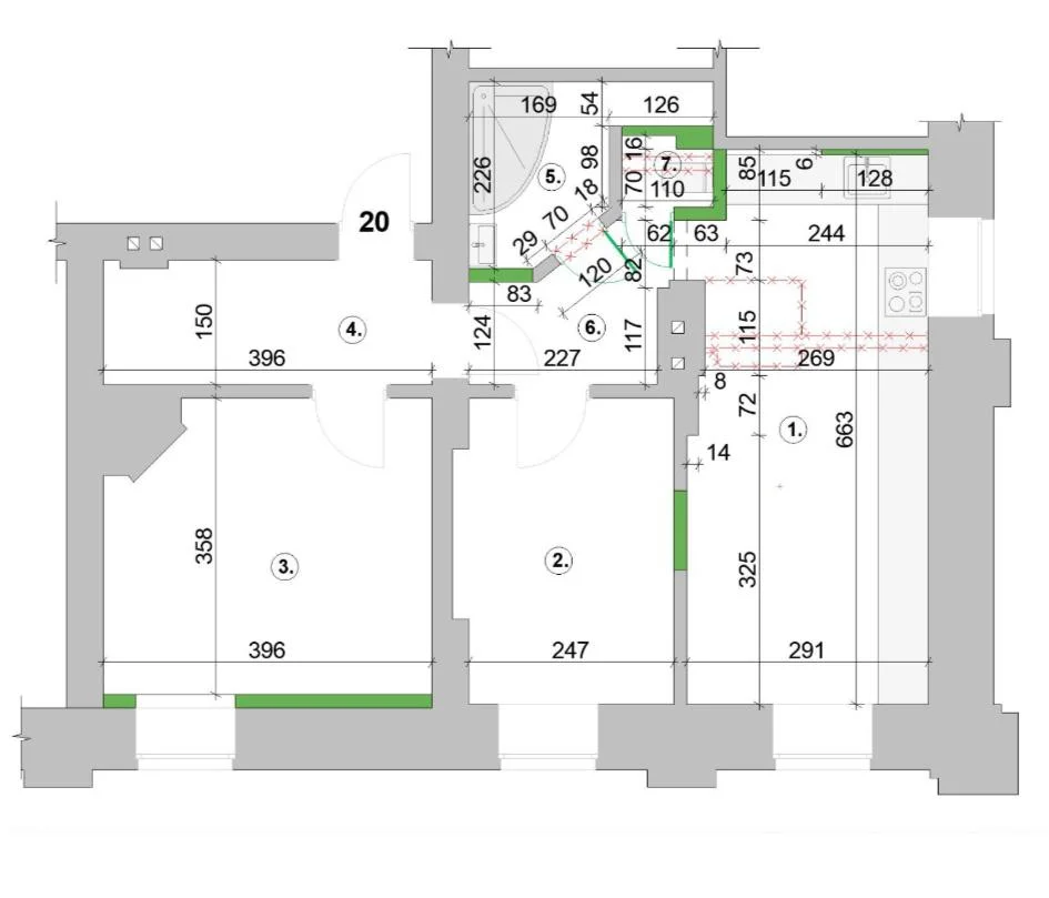
Dzīvoklis ir mājīgs un pilnībā labiekārtots – lielākajā daļā veikts kvalitatīvs remonts, izņemot priekštelpu (5,5 m²), kas dod iespēju ieviest savu redzējumu. Virtuve šeit ir plaša, gaiša un funkcionāla, ar ēdamzonu un visu nepieciešamo iebūvēto tehniku – sākot ar plīti un cepeškrāsni, beidzot ar trauku mazgājamo mašīnu, ledusskapi un saldētavu.

Dzīvoklī ir divas izolētas istabas, kā arī atsevišķa vannasistaba un tualete. Iebūvētie skapji nodrošina daudz vietas uzglabāšanai, bet apkures sistēma pielāgota ērtībām – divas malkas krāsnis un elektriskā apkure, kuru iespējams regulēt ar aplikāciju. Karsto ūdeni nodrošina 150 l boileris. Ikmēneša izdevumi ir samērīgi – komunālie maksājumi vidēji ap 100 EUR, elektrība no 70 līdz 130 EUR atkarībā no sezonas. Īpašumam jau ir sagatavots vērtējums, kas ļauj darījumu veikt ātrāk un ērtāk.

Ēka ir sakopta un droša – renovēta, slēdzama kāpņu telpa, kā arī nožogots pagalms ar rotaļu laukumu, puķu dobēm un vietu automašīnai. Bez papildu maksas auto iespējams novietot arī uz ielas.

Atrašanās vieta sniedz priekšrocības – tuvumā ir iepirkšanās centrs Rīga Plaza, skaistie Arkādijas parki un Māras dīķis, bet sabiedriskais transports pieejams teju pie pašām mājas durvīm.

Torņakalns ir rajons ar lielu potenciālu – šeit top jauni dzīvojamie projekti, attīstās infrastruktūra un pieaug pieprasījums pēc īpašumiem. Tas ir īstais brīdis ieguldīt vietā, kuras vērtība nākotnē tikai kāps.


Rodrigo Strautiņš
26834385